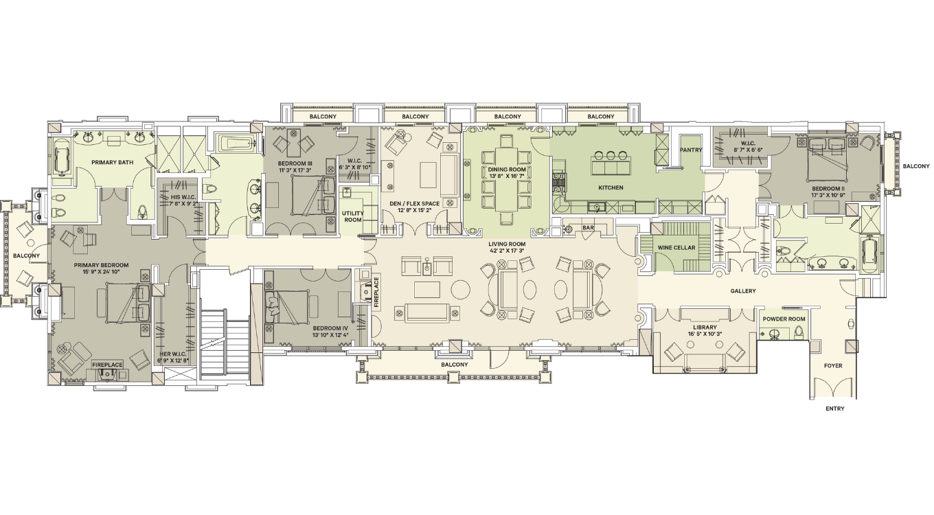
Steps from Rodeo Drive, The Maybourne Beverly Hills hotel features only 20 private residences. Spanning nearly 4,700 square feet and occupying its own wing of the hotel, Residence 7G offers sweeping views of the Hollywood Hills and a rare opportunity to own at one of Beverly Hills’ most sought after addresses.
Residence 7G combines the comforts of home with the unmatched services, amenities and conveniences of a five-star hotel, all within the heart of the Golden Triangle in Beverly Hills.
Residence 7G combines the comforts of home with the unmatched services, amenities and conveniences of a five-star hotel, all within the heart of the Golden Triangle in Beverly Hills.





























